| 価格 | 10,500万円値下がり ![]() |
||||||
|---|---|---|---|---|---|---|---|
| 所在地 | 東京都杉並区浜田山4丁目
この地域周辺の物件を見る |
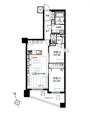
専有面積 | 65.88u | 間取り | 2LDK (LDK16/洋室5.9/洋室4.5) | ||
| 交通 | 京王井の頭線 西永福/徒歩5分
京王井の頭線 浜田山/徒歩12分 |
管理費等 | 12,670円 | 修繕積立金 | 10,780円 | 所在階/階数 | 5階/地上8階建 | 築年月 | 2013年2月築 | バルコニー面積 | 9.97m² |
電話をかける(携帯・PHS可)
0120-979-668
「ホームページを見た」とお伝え下さい。
お問い合わせ番号をお伝えください
RHS-B00164-018608
| 特徴 |
|
|---|---|
| セールスコメント | ■■クラッシィハウス浜田山■*■* ●住友商事旧分譲〜クラッシィハウス〜 ●2013年築の築浅マンション ●愛犬家には嬉しいペット2匹飼育可(規約有) ●5階部分の南西向きで陽あたり良好 ●専有面積65.88平米のゆとりある2LDK ●システム収納やWIC収納など収納豊富♪ ●新規内装リノベーション実施+アフターサービス保証付 ●LD床暖房、食洗機、ディスポーザー、エアコン、追焚、浴室乾燥暖房機など設備充実〜! ●キッチン背面にはカップボード付で収納便利♪ ●オートロック・宅配BOX・エレベーター完備 ●住宅ローン控除、登録免許税や不動産取得税の軽減など各種減税利用可 ■■当社特典(1)…≪仲介手数料無料≫でご紹介致します…** ■■当社特典(2)…ご契約者様に≪JCBギフト券20万円≫プレゼント** |
| 採光面 | 南西 | 取引態様 | 仲介 |
|---|---|---|---|
| 現況 | 空家 | 引渡し | 即時 |
| 総戸数 | 64戸 | 構造 | RC造 |
| テラス面積 | - | 専用庭面積 | - |
| 駐車場 | - | 駐輪場 | - |
| 建物権利 | - | 土地権利 | 所有権 |
| 用途地域 | 第一種低層住居専用地域 - - | 管理態様 | 管理形態:委託(通勤) 管理組合:あり 管理会社:住商建物(株) |
| 小学校区 | 杉並区立浜田山小学校 (東京都杉並区) この学区の他の物件を見る |
中学校区 | 高井戸中学校 (東京都杉並区) この学区の他の物件を見る |
| 情報更新日 | 2026年04月15日 | 次回更新日 | 2026年04月29日 |
電話をかける(携帯・PHS可)
0120-979-668
「ホームページを見た」とお伝え下さい。
お問い合わせ番号をお伝えください
RHS-B00164-018608
| 年利率 | % |
||
|---|---|---|---|
| ボーナス払い | 返済年数 | ||
| 頭金 | 直接入力する | 万円 | |

毎月のご返済額 |
ボーナス(×年2回) |
物件価格10,500万円 |
電話でお問い合わせ
アイベックスホーム
|
電話をかける 0120-979-668 ※「ホームページを見た」とお伝えください。 |
お問い合わせ番号をお伝えください RHS-B00164-018608 |
|---|
TEL.0120-979-668
※不動産投資で電話営業されているアイデックス株式会社(新宿区)とは一切関わりございません。
〒 171-0014
豊島区池袋2丁目40-2 スペースG1 4F
営業時間:10:00〜20:00
定休日:火曜日・水曜日
Copyright (C) AIBEX HOME All Rights Reserved.
*住友商事旧分譲×クラッシィハウス*平成25年築*広々2LDK*南西向き陽あたり良好*ペット2匹飼育可*新規内装リノベーション実施*◆*