パレス南池袋 東京都豊島区南池袋2丁目6,799万円の中古マンション|分譲マンション情報|アイベックスホーム株式会社

お問い合わせはコチラ!

中古マンション

パレス南池袋 お気に入り
価格 6,799万円値下がり ローンシミュレーション
所在地 東京都豊島区南池袋2丁目
この地域周辺の物件を見る
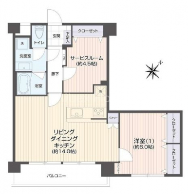
専有面積 58.15u 間取り 1SLDK (LDK14/洋室6/S4.5)
交通
東京メトロ有楽町線 東池袋/徒歩4分
JR山手線 池袋/徒歩8分
管理費等 30,940円 修繕積立金 18,930円
所在階/階数 8階/地上11階建 築年月 1979年5月築 バルコニー面積 6.99m²
ここがおすすめ

◆*池袋が生活圏内の好立地*◆事務所利用もOK◆新規内装リノベーション物件◆広々1LDK+S◆管理体制良好◆


  • 現地外観写真 -
  • 間取り図(販1マンション) -
  • 現地外観写真 -
  • エントランス -
  • エントランス -
  • エントランス -
  • エントランス -
  • エントランス -
お問い合わせ、資料請求、見学のお申し込みはこちらから

電話をかける(携帯・PHS可)
0120-979-668
「ホームページを見た」とお伝え下さい。

お問い合わせ番号をお伝えください
RHS-B00164-019045

内見予約
お問合せ
内見予約・お問い合わせ

セールスポイント

特徴
  • バルコニー
  • プライスダウン
  • リノベーション済み
セールスコメント         ◆◆パレス南池袋◆◆
☆東池袋駅徒歩4分/池袋駅徒歩8分の好立地!!!
☆総戸数185戸の大規模マンション
☆住友不動産建物サービス(株)管理で管理体制良好
☆専有面積58.15平米のゆとりある1LDK+S
☆事務所利用可
☆新規内装リノベーション実施中(令和8年4月中旬完了)
☆2015年大規模修繕工事実施済み

■■当社特典(1)…≪仲介手数料無料≫でご紹介致します…**
■■当社特典(2)…ご契約者様に≪JCBギフト券10万円≫プレゼント**


物件概要

採光面 東南 取引態様 仲介
現況 空家 引渡し 相談
総戸数 185戸 構造 SRC造
テラス面積 - 専用庭面積 -
駐車場 - 駐輪場 -
建物権利 - 土地権利 所有権
用途地域 商業地域 - - 管理態様 管理形態:委託(通勤)
管理組合:あり
管理会社:住友不動産建物サービス(株)
小学校区 豊島区立南池袋小学校
(東京都豊島区)
この学区の他の物件を見る
中学校区 千登世橋中学校
(東京都豊島区)
この学区の他の物件を見る
情報更新日 2026年05月02日 次回更新日 2026年05月16日
※各種情報と差異がある場合は現況優先となります
※物件情報の学区情報について
当サイト物件情報に記載されております通学区域(学区)情報は、国土数値情報ダウンロードサービスが提供する小学校区データ【2016年度】及び中学校区データ【2016年度】を元に加工したものですので、記載情報が現在の学区域と異なる場合がございます。
国土数値情報ダウンロードサービスのWEBサイト上で記述通り、データは必ずしも正確とは言えません。また、通学区域(学区)は毎年見直しの対象となりますので、そちらを踏まえ学区情報は参考としてご活用下さい。
お問い合わせ、資料請求、見学のお申し込みはこちらから

電話をかける(携帯・PHS可)
0120-979-668
「ホームページを見た」とお伝え下さい。

お問い合わせ番号をお伝えください
RHS-B00164-019045

内見予約
お問合せ
内見予約・お問い合わせ

この物件でローンシミュレーションする

年利率
ボーナス払い 返済年数
頭金 直接入力する 万円

毎月のご返済額

ボーナス(×年2回)

物件価格

6,799万円
※返済金額はあくまでも目安です。
  • こちらの物件を見たお客様はこんな物件もチェックしています。
  • お気に入り物件

電話でお問い合わせ
アイベックスホーム

電話をかける

0120-979-668

※「ホームページを見た」とお伝えください。
お問い合わせ番号をお伝えください
RHS-B00164-019045

お問い合わせ

お問い合わせ内容
お問合せ内容必須
【備考欄】
詳細な見学ご希望時間、ご質問、ご希望条件などがございましたらお聞かせ下さい。
(2000文字以内)
お客様情報
お名前必須
連絡先必須 メールアドレス

※ご記入いただいたメールアドレス宛てに、お問合せ内容の確認メールをお送りいたします。
※Yahoo!メールなどのフリーメールをご利用の場合、迷惑メールフォルダに入る場合があります。
 迷惑メールのフォルダ・設定等をご確認下さい。
電話番号
FAX(任意)
プライバシーポリシーを必ずご確認ください。内容に同意の上、確認画面へお進み下さい。

お気軽にお問い合わせください

0120-979-668
物件番号 RHS-B00164-019045
※「ホームページを見た」
とお伝え下さい。
アイベックスホーム株式会社

TEL.0120-979-668
※不動産投資で電話営業されているアイデックス株式会社(新宿区)とは一切関わりございません。
〒 171-0014
豊島区池袋2丁目40-2 スペースG1 4F
営業時間:10:00〜20:00 定休日:火曜日・水曜日

スマートフォンサイトはこちら

Copyright (C) AIBEX HOME All Rights Reserved.