サンビューハイツ高輪台 東京都港区白金台2丁目9,590万円の中古マンション|分譲マンション情報|アイベックスホーム株式会社

お問い合わせはコチラ!
>
>
中古マンション
>
港区
>
都営三田線
>
サンビューハイツ高輪台

中古マンション

サンビューハイツ高輪台 お気に入り
価格 9,590万円値下がり ローンシミュレーション
所在地 東京都港区白金台2丁目
この地域周辺の物件を見る
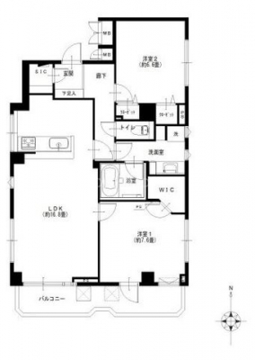
専有面積 72.65u 間取り 2LDK (LDK16.8/洋室7.6/洋室6.6)
交通
都営三田線 白金台/徒歩6分
都営浅草線 高輪台/徒歩8分
管理費等 16,000円 修繕積立金 17,600円
所在階/階数 3階/地上5階 地下1階建 築年月 1981年3月築 バルコニー面積 8.91m²
ここがおすすめ

「白金台」駅徒歩6分、3駅5路線利用可能♪新規リノベーション物件*角部屋×南向きにつき採光・通風良好です*約16.8帖のLDK◇アフターサービス保証付き◇


  • 現地外観写真 -
  • 間取り図(販1マンション) -
  • その他 -
  • 玄関 -
  • 玄関 -
  • 収納 -
  • その他内観 -
  • その他内観 -
  • その他内観 -
  • その他内観 -
  • リビング -
  • リビング -
  • リビング -
  • その他 -
  • キッチン -
  • バルコニー -
  • その他 -
  • 洗面台・洗面所 -
  • 浴室 -
  • その他 -
お問い合わせ、資料請求、見学のお申し込みはこちらから

電話をかける(携帯・PHS可)
0120-979-668
「ホームページを見た」とお伝え下さい。

お問い合わせ番号をお伝えください
RHS-B00164-019120

内見予約
お問合せ
内見予約・お問い合わせ

セールスポイント

特徴
  • フローリング
  • 給湯器
  • システムキッチン
  • 追い焚き
  • バス・トイレ別
  • 室内洗濯機置場
  • 浴室乾燥機
  • コンロ三口
  • Wクローゼット
  • エレベーター
  • 駐輪場
  • 角部屋
  • バルコニー
  • バイク置き場
  • TVドアホン
  • 都市ガス
  • プライスダウン
  • リノベーション済み
  • 南向き
セールスコメント ■■当社特典(1)…≪仲介手数料無料≫でご紹介致します…**
■■当社特典(2)…ご契約者様に≪JCBギフト券 10万円≫プレゼント**


物件概要

採光面 取引態様 仲介
現況 空家 引渡し 相談
総戸数 14戸 構造 RC造
テラス面積 - 専用庭面積 -
駐車場 なし 駐輪場 -
建物権利 - 土地権利 所有権
用途地域 第一種住居地域 - - 管理態様 管理形態:委託(巡回)
管理組合:あり
管理会社:株式会社合人社計画研究所
小学校区 港区立白金小学校
(東京都港区)
この学区の他の物件を見る
中学校区 高松中学校
(東京都港区)
この学区の他の物件を見る
情報更新日 2026年05月19日 次回更新日 2026年06月02日
※各種情報と差異がある場合は現況優先となります
※物件情報の学区情報について
当サイト物件情報に記載されております通学区域(学区)情報は、国土数値情報ダウンロードサービスが提供する小学校区データ【2016年度】及び中学校区データ【2016年度】を元に加工したものですので、記載情報が現在の学区域と異なる場合がございます。
国土数値情報ダウンロードサービスのWEBサイト上で記述通り、データは必ずしも正確とは言えません。また、通学区域(学区)は毎年見直しの対象となりますので、そちらを踏まえ学区情報は参考としてご活用下さい。
お問い合わせ、資料請求、見学のお申し込みはこちらから

電話をかける(携帯・PHS可)
0120-979-668
「ホームページを見た」とお伝え下さい。

お問い合わせ番号をお伝えください
RHS-B00164-019120

内見予約
お問合せ
内見予約・お問い合わせ

この物件でローンシミュレーションする

年利率
ボーナス払い 返済年数
頭金 直接入力する 万円

毎月のご返済額

ボーナス(×年2回)

物件価格

9,590万円
※返済金額はあくまでも目安です。

電話でお問い合わせ
アイベックスホーム

電話をかける

0120-979-668

※「ホームページを見た」とお伝えください。
お問い合わせ番号をお伝えください
RHS-B00164-019120

お問い合わせ

お問い合わせ内容
お問合せ内容必須
【備考欄】
詳細な見学ご希望時間、ご質問、ご希望条件などがございましたらお聞かせ下さい。
(2000文字以内)
お客様情報
お名前必須
連絡先必須 メールアドレス

※ご記入いただいたメールアドレス宛てに、お問合せ内容の確認メールをお送りいたします。
※Yahoo!メールなどのフリーメールをご利用の場合、迷惑メールフォルダに入る場合があります。
 迷惑メールのフォルダ・設定等をご確認下さい。
電話番号
FAX(任意)
プライバシーポリシーを必ずご確認ください。内容に同意の上、確認画面へお進み下さい。

お気軽にお問い合わせください

0120-979-668
物件番号 RHS-B00164-019120
※「ホームページを見た」
とお伝え下さい。
アイベックスホーム株式会社

TEL.0120-979-668
※不動産投資で電話営業されているアイデックス株式会社(新宿区)とは一切関わりございません。
〒 171-0014
豊島区池袋2丁目40-2 スペースG1 4F
営業時間:10:00〜20:00 定休日:火曜日・水曜日

スマートフォンサイトはこちら

Copyright (C) AIBEX HOME All Rights Reserved.