| 価格 | 11,290万円値下がり ![]() |
||||||
|---|---|---|---|---|---|---|---|
| 所在地 | 東京都目黒区中央町1丁目
この地域周辺の物件を見る |
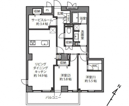
専有面積 | 74.99u | 間取り | 2SLDK (LDK14.9/洋室5.8/洋室5.5/S3.4) | ||
| 交通 | 東急東横線 学芸大学/徒歩9分
東急東横線 祐天寺/徒歩14分 |
管理費等 | 23,300円 | 修繕積立金 | 18,748円 | 所在階/階数 | 3階/地上5階建 | 築年月 | 1989年3月築 | バルコニー面積 | 6.74m² |
電話をかける(携帯・PHS可)
0120-979-668
「ホームページを見た」とお伝え下さい。
お問い合わせ番号をお伝えください
RHS-B00164-019121
| 特徴 |
|
|---|---|
| セールスコメント | ■■/ロイヤルヴィーゼ学芸大学/■■ ☆安心の新耐震基準で建てられた地上5階建て3階部分 ☆エレベーター・宅配BOX・オートロック完備 ☆長期修繕計画有り管理体制良好 ☆専有面積74.99平米のゆとりある2LDK+S ☆新規内装リノベーション実施+アフターサービス保証付 ◆*≪仲介手数料無料≫*◆買主様の【仲介手数料】を【無料】にすることで、購入コストの大幅なカットを実現しております!「少しでも安く買いたい」「余計な出費は抑えたい」そんな想いに応える、弊社仲介の不動産サービスを是非ご利用ください。≪仲介手数料無料≫により約380万円もお得です**さらに!ご契約者様にJCBギフト券10万円プレゼント!! |
| 採光面 | 東南 | 取引態様 | 仲介 |
|---|---|---|---|
| 現況 | 空家 | 引渡し | 即時 |
| 総戸数 | 15戸 | 構造 | RC造 |
| テラス面積 | - | 専用庭面積 | - |
| 駐車場 | - | 駐輪場 | - |
| 建物権利 | - | 土地権利 | 所有権 |
| 用途地域 | 準工業地域 - - | 管理態様 | 管理形態:委託(巡回) 管理組合:あり 管理会社:日本ハウズイング(株) |
| 小学校区 | 目黒区立鷹番小学校 (東京都目黒区) この学区の他の物件を見る |
中学校区 | 目黒中央中学校 (東京都目黒区) この学区の他の物件を見る |
| 情報更新日 | 2026年04月20日 | 次回更新日 | 2026年05月04日 |
電話をかける(携帯・PHS可)
0120-979-668
「ホームページを見た」とお伝え下さい。
お問い合わせ番号をお伝えください
RHS-B00164-019121
| 年利率 | % |
||
|---|---|---|---|
| ボーナス払い | 返済年数 | ||
| 頭金 | 直接入力する | 万円 | |

毎月のご返済額 |
ボーナス(×年2回) |
物件価格11,290万円 |
電話でお問い合わせ
アイベックスホーム
|
電話をかける 0120-979-668 ※「ホームページを見た」とお伝えください。 |
お問い合わせ番号をお伝えください RHS-B00164-019121 |
|---|
TEL.0120-979-668
※不動産投資で電話営業されているアイデックス株式会社(新宿区)とは一切関わりございません。
〒 171-0014
豊島区池袋2丁目40-2 スペースG1 4F
営業時間:10:00〜20:00
定休日:火曜日・水曜日
Copyright (C) AIBEX HOME All Rights Reserved.
☆安心の新耐震基準☆管理体制良好☆南東向き3階☆2SLDK☆新規内装リノベーション実施☆★仲介手数料無料対象★☆